• About
  • Kontak Kami
  • Privacy Policy
  • Disclaimer

Desain Rumah

Rujukan Desain Rumah Hemat Biaya

Menu
  • Home
Home » Archive for 2017
Desain Taman Rumah Sederhana Untuk Rumah Minimalis

Desain Taman Rumah Sederhana Untuk Rumah Minimalis

Denah Rumah, Teras Rumah
Taman merupakan bagian dari rumah yang tidak bisa dipisahkan, oleh karena itu kehadiran taman rumah sangat diperlukan untuk setiap rumah te...
Read More
Desain Rumah Joglo Sederhana Dengan Konsep Klasik

Desain Rumah Joglo Sederhana Dengan Konsep Klasik

Denah Rumah, Desain Rumah, Rumah Joglo
Indonesia kaya akan budaya dan seni, oleh karena itu banyak desain rumah yang dijadikan sebagai subjek dalam menerapkan seni, salah satunya...
Read More
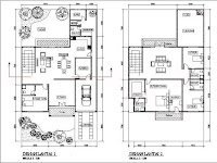
Desain dan Denah Rumah Minimalis Ukuran 8 x 10 Meter

Desain dan Denah Rumah Minimalis Ukuran 8 x 10 Meter

Denah Rumah, Desain Rumah
Rujukan Desain Rumah - Selamat weekend semoga liburannya bisa menjadikan semangat untuk besok yang mulai beraktivitas kembali, oke kali in...
Read More
Denah Rumah Minimalis Ukuran 5 x 12 Meter Yang Memukau

Denah Rumah Minimalis Ukuran 5 x 12 Meter Yang Memukau

Denah Rumah, Desain Rumah
Memiliki rumah sendiri adalah impian setiap orang, oleh karenanya setiap orang akan berusaha membangun rumah dengan senyaman mungkin dan de...
Read More
Desain Interior Minimalis Untuk Ruang Tamu Sederhana

Desain Interior Minimalis Untuk Ruang Tamu Sederhana

Desain Rumah, Ruang Tamu
Setiap rumah tentunya akan mempunyai ruang tamu yang berfungsi menjadi ruangan untuk menyambut setiap tamu yang berkunjung ke rumah kita na...
Read More
Desain Kamar Mandi Minimalis Ukuran Sedang

Desain Kamar Mandi Minimalis Ukuran Sedang

Desain Rumah, Kamar Mandi
Pada kesempatan kali ini saya akan membagikan beberapa contoh kamar mandi minimalis untuk ukuran ruang yang tidak terlalu luas atau tidak t...
Read More
Desain Ruang Makan Sederhana Untuk Rumah Minimalis

Desain Ruang Makan Sederhana Untuk Rumah Minimalis

Minimalis, Ruang Makan
Mempunyai ruang makan adalah sebuah ide yang sangat cemerlang, akan tetapi ruang makan harus disesuaikan dengan luas pada rumah kita supaya...
Read More
Desain Dapur Minimalis Sederhana Untuk Rumah Anda

Desain Dapur Minimalis Sederhana Untuk Rumah Anda

Dapur, Desain Rumah
Dapur merupakan bagian yang sangat penting dalam sebuah rumah, karena dapur merupakan sumber dari asupan makanan setiap hari yang dimasak o...
Read More
Desain Denah Rumah Minimalis Type 70/140

Desain Denah Rumah Minimalis Type 70/140

denah rumah kecil, denah rumah minimalis, rumah 1 lantai, rumah minimalis, Type 70
Kali ini saya akan membahas beberapa desain dan denah rumah dengan ukuran 70/140 yang mungkin bermanfaat bagi anda. B agi anda yang mau mem...
Read More
Newer Posts Older Posts Home
Subscribe to: Comments (Atom)

Blog Archive

  • ►  2020 (2)
    • ►  November (2)
  • ►  2019 (8)
    • ►  September (3)
    • ►  August (5)
  • ▼  2017 (9)
    • ▼  October (1)
      • Desain Taman Rumah Sederhana Untuk Rumah Minimalis
    • ►  January (8)
      • Desain Rumah Joglo Sederhana Dengan Konsep Klasik
      • Desain dan Denah Rumah Minimalis Ukuran 8 x 10 Meter
      • Denah Rumah Minimalis Ukuran 5 x 12 Meter Yang Mem...
      • Desain Interior Minimalis Untuk Ruang Tamu Sederhana
      • Desain Kamar Mandi Minimalis Ukuran Sedang
      • Desain Ruang Makan Sederhana Untuk Rumah Minimalis
      • Desain Dapur Minimalis Sederhana Untuk Rumah Anda
      • Desain Denah Rumah Minimalis Type 70/140
  • ►  2016 (14)
    • ►  July (1)
    • ►  May (2)
    • ►  March (4)
    • ►  February (5)
    • ►  January (2)
  • ►  2015 (22)
    • ►  December (7)
    • ►  November (10)
    • ►  October (1)
    • ►  May (1)
    • ►  April (1)
    • ►  February (1)
    • ►  January (1)
  • ►  2014 (18)
    • ►  October (1)
    • ►  August (1)
    • ►  May (2)
    • ►  April (10)
    • ►  January (4)

Labels

arsitek rumah minimalis atap rumah bahan bangunan bentuk rumah biaya membangun rumah minimalis modern Biaya Pembangunan Biaya Renovasi biaya rumah minimalis 2 lantai type 36 contoh gambar denah rumah minimalis Dapur Denah Rumah denah rumah kecil denah rumah minimalis desain Desain Rumah desain rumah minimalis 1 lantai 3 kamar desain rumah minimalis 2 lantai type 36 desain rumah minimalis 2 lantai type 36/72 desain rumah minimalis modern desain rumah minimalis modern 1 lantai desain rumah minimalis modern 2 lantai desain rumah minimalis modern type 36 desain rumah minimalis modern type 45 desain rumah minimalis modern type 70 Desain Rumah Sederhana eksterior Estimasi Pembuatan Dapur Estimasi Rumah Furniture gambar rumah minimalis Garasi Mobil harga rumah minimalis modern Home Office interior interior rumah minimalis modern Jendela Rumah Kamar Bayi Kamar Mandi kamar tidur lantai Minimalis model atap rumah minimalis 2 lantai model atap rumah minimalis 2013 model atap rumah minimalis dua lantai model atap rumah minimalis satu lantai model atap rumah minimalis type 36 model denah rumah minimalis 2 lantai model denah rumah minimalis 3 kamar Model Rumah Minimalis model rumah minimalis 1 lantai model rumah minimalis 1 lantai 4 kamar tidur model rumah minimalis 2 lantai model rumah minimalis sederhana model rumah minimalis sederhana 1 lantai model rumah minimalis terbaru 1 lantai model rumah minimalis terbaru 2 lantai model rumah minimalis terbaru 2015 model rumah minimalis terbaru type 36 model rumah minimalis type 36 Modern pagar Pagar Rumah ruang keluarga Ruang Makan Ruang Tamu rumah 1 lantai Rumah Joglo rumah minimalis Rumah Minimalis 1 Lantai rumah minimalis 2 lantai type 36 pojok rumah minimalis idaman 1 lantai rumah minimalis idaman 2 lantai rumah minimalis idaman 2015 rumah minimalis idaman keluarga rumah minimalis modern 2019 rumah minimalis modern satu lantai rumah minimalis modern type 36 rumah minimalis sederhana type 36 Rumah Ridwan Kamil Rumah Ukuran 8 x 10 m teras Teras Rumah Tips Type 27 Type 70 warna cat rumah minimalis

Entri Populer

  • Membangun Rumah Minimalis Dengan Biaya Dibawah 40 Juta
    Kembali lagi bersama kami di blog sederhana ini, kali ini kami akan berbagi informasi seputar pembangunan rumah minimalis dengan harga yang...
  • Perkiraan Estimasi Biaya Pembuatan Dapur Minimalis
    Dapur merupakan salah satu bagian dari ruangan interior rumah yang memiliki fungsi yang penting. Dapur juga merupakan ruangan yang banyak s...
  • Desain dan Denah Rumah Minimalis Ukuran 8 x 10 Meter
    Rujukan Desain Rumah - Selamat weekend semoga liburannya bisa menjadikan semangat untuk besok yang mulai beraktivitas kembali, oke kali in...
  • Yuk Menggambar Denah Rumah Sederhana 1 Lantai 3 Kamar Tidur
    Denah merupakan bagian awal yang penting untuk menentukan gambaran secara kasar model dari rumah yang akan Anda bangun. Dengan menggunakan ...
  • Mencoba Model Pintu dan Teralis Rumah Minimalis
    Suatu rumah minimalis akan terlihat elegan dari poin pertama penilaian, yaitu pintu utama dan teralis yang menghiasinya. Model pintu dan te...
Copyright 2016 Desain Rumah
Powered by Rujukan Desain Rumah